Per favore inserisci il tuo nome utente o l'indirizzo email. Riceverai un link per creare una nuova password via email.
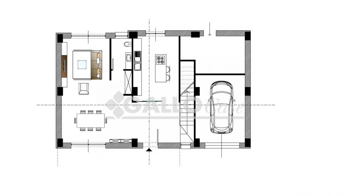
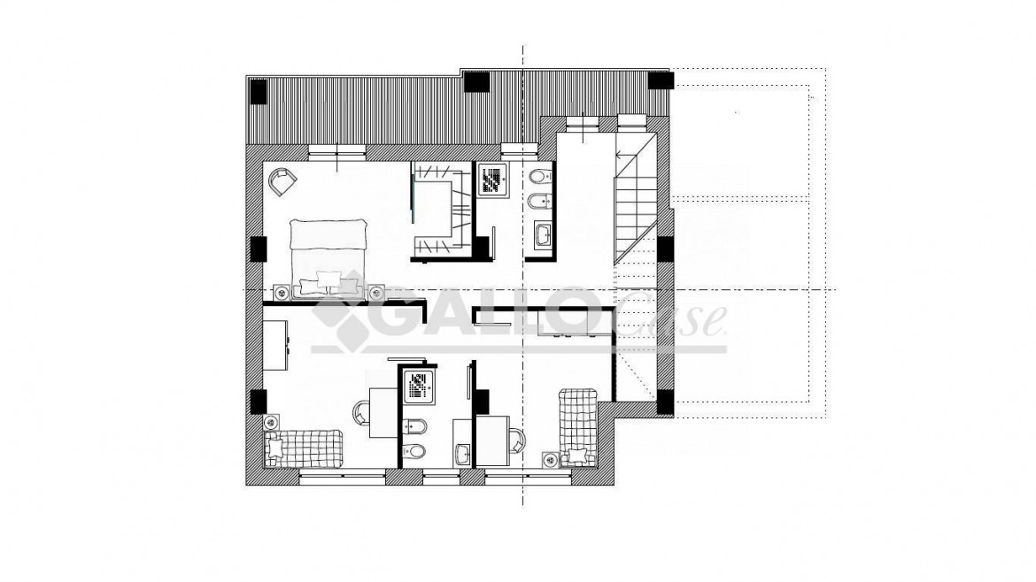
Porzione esterna di villa trifamiliare, posta su due livelli e composta da:
– piano giorno con ingresso – salone doppio, cucina, bagno, ampio patio oltre locale tecnico ed attiguo garage;
– piano notte con disimpegno, tre camere, la matrimoniale dotata di cabina armadio, doppi servizi e terrazzo.
Possibilità di personalizzare la distribuzione interna e di scelta dei materiali sulla base di un ricercato capitolato rifiniture.
Le soluzioni saranno curate in ogni dettaglio, con particolare attenzione all’efficienza energetica; ogni villa sarà dotata infatti di impianto fotovoltaico e di impianto solare termico con accumulo.
L’intervento prevede la realizzazione di moderne ed eleganti ville, posizionate in zona residenziale e molto strategica. Saranno quattro unità abitative di ugual dimensione, dotate di giardino esclusivo con accesso carrabile da strada comunale.







Villa in vendita a Rende, 240mq AG3-8229c - loc. Piano Monello, Via Campania
€470.000/+IVA
