Appartamento in vendita a Rovito, 150mq AG3-7990

Contrada Riforma
€130.000

Informazioni generali

  • Riferimento: AG3-7990
  • Tipologia: Appartamento
  • Contratto: In vendita
  • Prezzo di Vendita: €130.000
  • Superficie proprietà: 150 mq
  • Locali: 6
  • Bagni: 2
  • Comune: Rovito
  • Indirizzo: Contrada Riforma
  • Piano: Piano terra
  • Stato conservazione: Buono
  • Disponibilità: Immediata

Descrizione

Appartamento in buone condizioni, in zona tranquilla e panoramica, in vendita a Rovito.

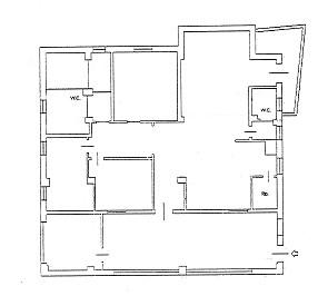
L’immobile è posto al piano terra ed è composto da: ingresso ampia sala (probabilmente chiusa da portico), salone doppio con angolo cottura, 3 stanze, doppi servizi, studio, balcone.

Mutuo residuo di € 75.000.

Dettagli

  • Salone: Doppio
  • Soggiorno: Sì
  • Cucina: Angolo Cottura
  • Camere: 3
  • Bagni: 2
  • Balconi: Presente
  • Giardino: Comune

Informazioni Aggiuntive

  • Riscaldamento: Autonomo
  • Impianto riscaldamento – Alimentazione: Metano
  • Impianto riscaldamento – Tipologia: A radiatori
  • Camino: Tradizionale
  • Pavimento zona giorno: Monocottura
  • Pavimento zona notte: Monocottura
  • Infissi/Finestre: Alluminio con vetrocamera
  • Infissi interni: Alluminio

Efficienza energetica

Classe energetica
VA - In Fase Di Valutazione
Indice di prestazione energetica
  • A+
  • A
  • B
  • C
  • D
  • E
  • F
  • G
  • H
  • Indirizzo: Contrada Riforma
  • Città: Rovito
  • Provincia: Cosenza
  • Nazione: Italia

Informazioni di contatto

Gallo Case Rende
Gallo Case Rende
0984 846625

Richiedi informazioni su questo immobile