Per favore inserisci il tuo nome utente o l'indirizzo email. Riceverai un link per creare una nuova password via email.
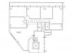
Ampio appartamento a due passi dall’isola pedonale di C.so Mazzini, di mq 175 circa più balcone di mq 20 circa, posto al primo piano e composto da: ingresso in ampio salone, cucina abitabile, quattro stanze di cui una con comoda cabina armadio, due bagni e ripostiglio.
L’immobile è collocato in zona con facilità di parcheggio.
















Appartamento in vendita a Cosenza, 195mq AG1-8503 - Viale Giacomo Mancini, 26/B, 87100
€298.000
